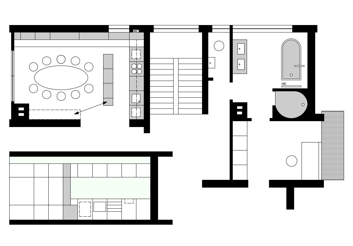
Residence S, Stuttgart
In the conversion of a 50s house in Stuttgart residential areas were renovated. In addition to the installation of a new bathroom in the attic, the renovation of dining room and kitchen was on the ground floor.
Photos: Valentin Wormbs













